Amenities
- Property ID: DES1664
- Property Status: For Sale
- Price: $
- Land Area: -㎡
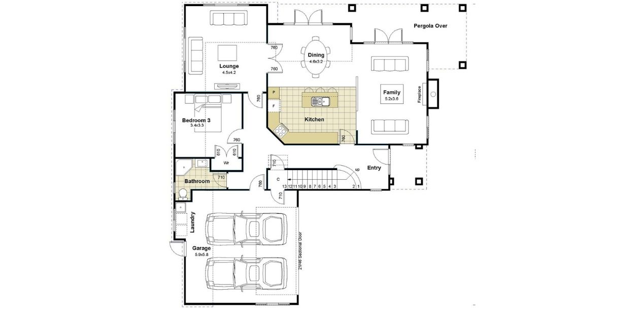
- Floor Area: 295㎡
- Living Areas: 3
- Bedrooms: 4
- Bathrooms: 3
- Garages: 2
- Pool: No
- Solar Built In: No
- Year Built: -
Description
4 bedrooms
2 bathrooms - one main en-suite
Open plan, kitchen, living, dining with separate lounge upstairs
Large attic storage
Double internal access garage
See More ![Down arrow icon]()
Floor plan
0 / 2









