Test Mode - staging
Search
Builders
Developments
Showhomes
Home Loans
Journeys End Modern
Views:
.
.
.
Added on: 24 Jul 2023
4
2
2
Select to share
0 / 1
Amenities
Property ID:
DES1780
Property Status:
For Sale
Price:
$429000
Land Area:
-㎡
Floor Area:
-㎡
Living Areas:
1
Bedrooms:
4
Bathrooms:
2
Garages:
2
Pool:
No
Solar Built In:
No
Year Built:
-
Description
See More
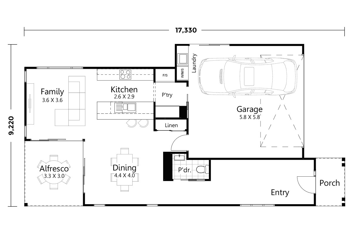
Floor plan
0 / 1
Builder
09 236 5150
Email Builder
Chat with Builder
View Listings
View Profile
Email Enquiry
Name*
Email*
Phone
Message*
Send
Buyers Checklist
Can this place get Ultra-Fast Fibre Broadband?
What would my mortgage payments be?
Find out the cost to insure this house
See recent sales in the area
What can build on this land?
You may be interested