Amenities
- Property ID: DES1618
- Property Status: For Sale
- Price: $
- Land Area: -㎡
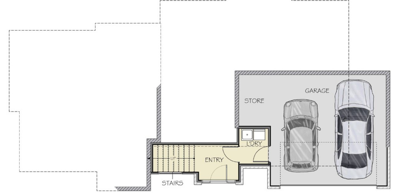
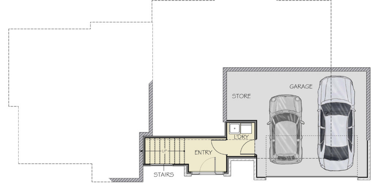
- Floor Area: 176㎡
- Living Areas: 2
- Bedrooms: 4
- Bathrooms: 2
- Garages: 2
- Pool: No
- Solar Built In: No
- Year Built: -
Description
4 bedroom
2 bathrooms - one main en-suite
Open plan kitchen, living, dining
Separate laundry
Double garage
See More ![Down arrow icon]()
Floor plan
0 / 2









