Amenities
- Property ID: DES18C5
- Property Status: For Sale
- Price: $724500
- Land Area: -㎡
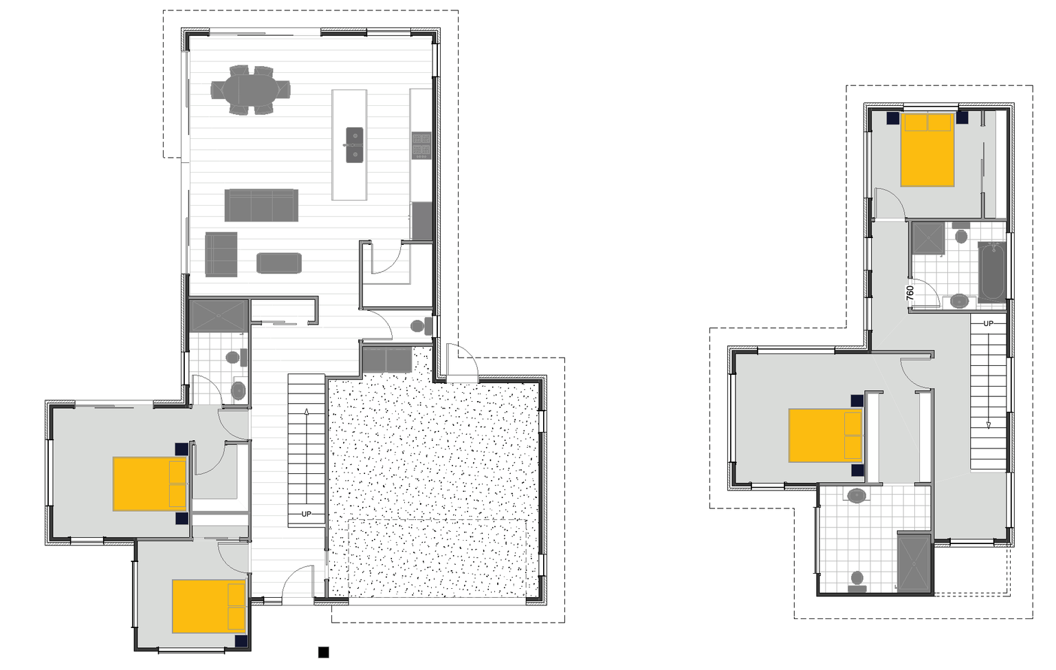
- Floor Area: 207㎡
- Living Areas: 1
- Bedrooms: 4
- Bathrooms: 3
- Garages: 2
- Pool: No
- Solar Built In: No
- Year Built: -
Features
- Bosch appliances
- Stone bench
- Lawn seed
- Laminate flooring
- Yale Digital lock
- Earthworks included
- Drainage WW, SW included
- 80m2 Standard Concrete
- Power mains included
- Carpet
- Tiles in wet areas
- Retention detention tank
- Double drawer 900 vanity
- Windsor Hardware
- Hag 11 doors
- Shower rain head
- Bathroom storage tower
- LED Lights
- 600 x 600 tiles
- Tile or glass splash-back
- PDL switches and plugs
- Bricks
- Weatherboard
Description
Introducing a stunning 4-bedroom, 3-bathroom house design that exudes elegance and style. With a spacious floor area of 207 square meters, this home offers ample space for comfortable living.
As you enter the house, you are greeted by a grand foyer that leads to the open-concept living area. The living room is bathed in natural light, thanks to the large windows that provide a seamless connection to the outdoors. The kitchen is a chef's dream, featuring modern appliances, sleek countertops, and ample storage space.
The master bedroom is a true sanctuary, complete with a luxurious ensuite bathroom and a walk-in closet. The three additional bedrooms are generously sized and perfect for a growing family or accommodating guests. The house also includes two well-appointed bathrooms, ensuring convenience and privacy for everyone.
The design of this house seamlessly blends indoor and outdoor living. While the deck and pool are not included in this particular design, the layout allows for the addition of these features if desired. Imagine spending lazy summer afternoons lounging by the pool or hosting barbecues on the deck with family and friends.
The attention to detail is evident throughout the house, from the quality materials used for the roof and walls to the thoughtful design elements that enhance the overall aesthetic. This house offers the perfect balance of functionality and style, making it an ideal choice for those seeking a modern and comfortable living space.
Take a virtual tour of this exquisite house by visiting our website and exploring the gallery. Let your imagination run wild as you envision yourself living in this beautiful home. Don't miss the opportunity to make this house your own and create lasting memories in a space that truly reflects your style and personality.







