Description
Kennedy's Landing, we are perfectly located at 23 Kennedy’s Bush Road, Halswell. Here you will find everything you could need for your ideal lifestyle.
Nestled amongst the Port Hills. With local amenities, expansive parks, schools, all nearby with the beautiful Halswell Quarry Preschool on-site and Halswell Primary School just a short 170m walk away,
Kennedy's Landing is the ideal location for young families!
Contact:
Clark Mauger
0274 669 488
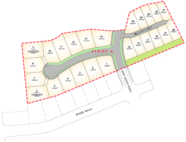
*Sections subject to availability.
See More ![Down arrow icon]()
Builders
Gallery
0 / 6
Stages
0 / 1
Developer

Email Enquiry
Name*
Email*
Phone
Message*
Key Details
- Halswell Primary decile 10
- Semi-rural location
- 400sqm, 616sqm & 679sqm Sections























