Amenities
- Property ID: LIS50FB
- Property Type: Showhome
- Property Status: For Sale
- Price: $
- Land Area: -㎡
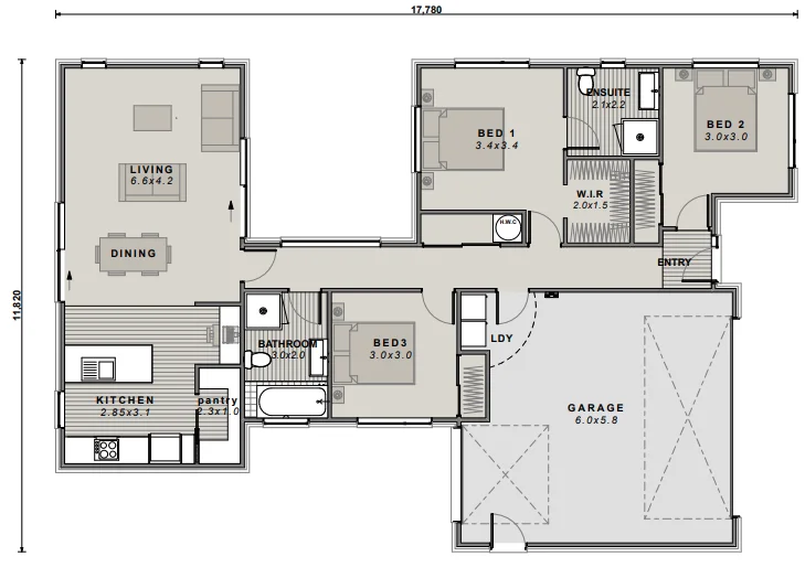
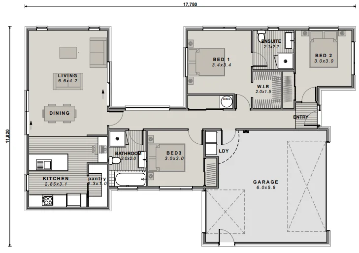
- Floor Area: 157㎡
- Living Areas: 1
- Bedrooms: 3
- Bathrooms: 2
- Garages: 2
- Pool: No
- Solar Built In: No
- Year Built: -
Features
- Ensuite
- Double garage
- Walk-in-wardrobe
- Walk-in-Pantry
- Study Nook
Description
The WESTWOOD design is the perfect abode for entertainers. A haven for either a Spa Pool or BBQ area. Excellent sized bedrooms including the master with ensuite and walk-in-wardrobe, plus a fantastic study nook.
See More ![Down arrow icon]()
Floor plan
0 / 1


















