Amenities
- Property ID: LIS5099
- Property Type: House & Land
- Property Status: For Sale
- Price: $1050000
- Land Area: 537㎡
- Floor Area: 182㎡
- Living Areas: 2
- Bedrooms: 4
- Bathrooms: 2
- Garages: 2
- Pool: No
- Solar Built In: No
- Year Built: -
Features
- Fibre/VDSL
- Stone
- Double glazing
- Double garage
- Ensuite
- Heat pump
- Walk-in-wardrobe
- Walk-in-Pantry
- Lawn/grass seed
- Brick
- Weatherboard
- Metal tile roof
- Wall hung vanities
- Tiled showers
- Security alarm
- Recessed LED lighting
Description
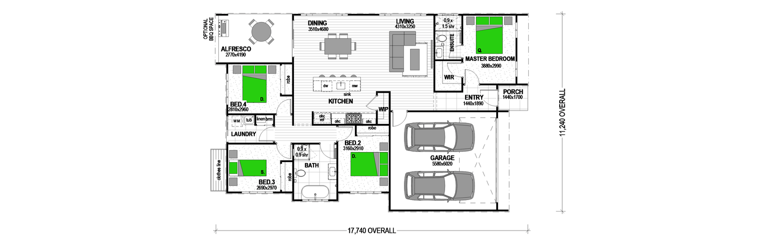
The Ellendale 182 is a compact house plan, yet full of features, making it the perfect home for young families or those looking to downsize.
The master bedroom is found at the front of the home, complete with an ensuite and walk-in robe. The three additional bedrooms are located at the rear left of the home.
The open plan kitchen, dining and living areas are central to the Ellendale, and open out to the alfresco. A double garage, walk-in pantry and built-in robes are some of the extra highlights of this home.
See More ![Down arrow icon]()
Floor plan
0 / 1







