Amenities
- Property ID: LIS50FF
- Property Type: Showhome
- Property Status: For Sale
- Price: $
- Land Area: -㎡
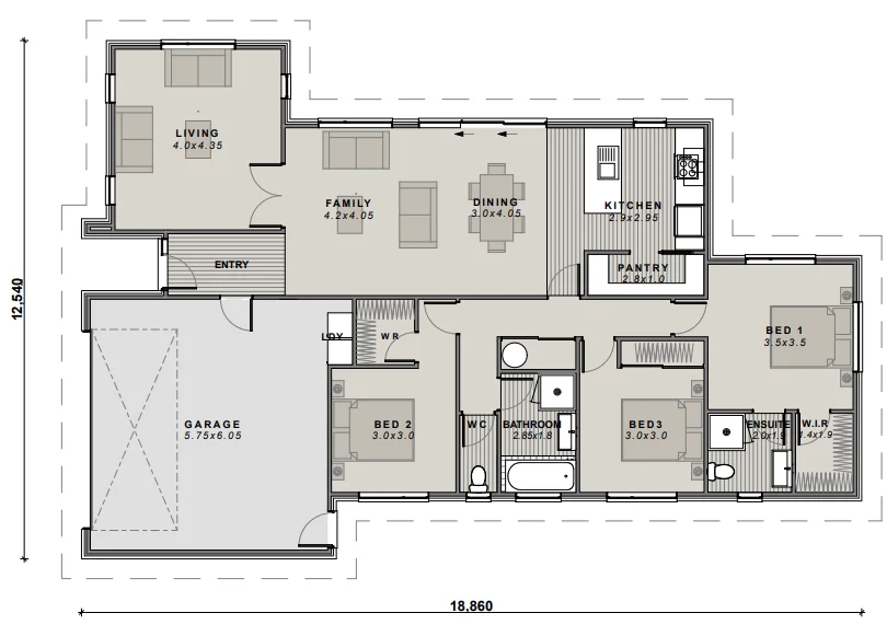
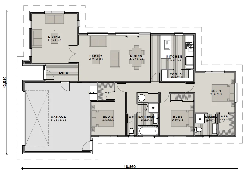
- Floor Area: 176㎡
- Living Areas: 2
- Bedrooms: 3
- Bathrooms: 2
- Garages: 2
- Pool: No
- Solar Built In: No
- Year Built: -
Features
- Ensuite
- Double garage
- Walk-in-wardrobe
- Walk-in-Pantry
Description
A separate entry foyer flows through to the generous open-plan family, dining and entertainers kitchen with butlers pantry. The Urban also boasts a separate living room and the large master is a secluded sanctuary with WIR and ensuite.
See More ![Down arrow icon]()
Floor plan
0 / 1




















