Amenities
- Property ID: LIS4FDF
- Property Type: House & Land
- Property Status: For Sale
- Price: $1194000
- Land Area: 5120㎡
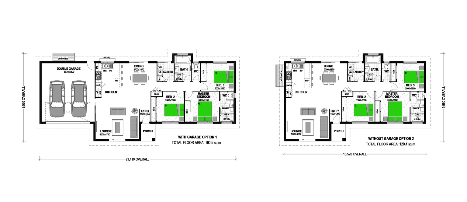
- Floor Area: 160㎡
- Living Areas: 1
- Bedrooms: 3
- Bathrooms: 2
- Garages: 2
- Pool: No
- Solar Built In: No
- Year Built: -
Features
- Watertanks
- Stone
- Septic tank
- Double glazing
- Double garage
- Ensuite
- Heat pump
- Walk-in-wardrobe
- Walk-in-Pantry
- Driveway included
- Fencing
- Lawn/grass seed
- Brick
- Weatherboard
- Metal tile roof
- Wall hung vanities
- Tiled showers
- Security alarm
- Recessed LED lighting
Description
Designed with space in mind. Featuring a large open plan kitchen, dining and lounge area as well as three bedrooms including a large master bedroom, the Waiheke 160 is a great home.
The kitchen window opens to a servery outside and the dining area also opens out with stacker doors – great for entertaining!
If you would like more information please contact Graeham today 0210324635
See More ![Down arrow icon]()
Floor plan
0 / 1







