Amenities
- Property ID: LIS4F87
- Property Type: House & Land
- Property Status: Sold
- Price: $849000
- Land Area: 450㎡
- Floor Area: -㎡
- Living Areas: 1
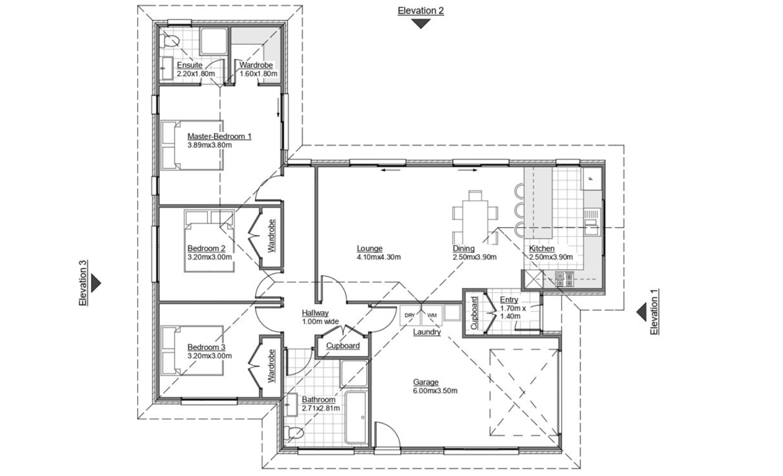
- Bedrooms: 3
- Bathrooms: 2
- Garages: 1
- Pool: No
- Solar Built In: No
- Year Built: -
Features
- Double glazing
- Ensuite
- Walk-in-wardrobe
- Fencing
- Landscaping
- Free standing bath
Description
We have several options available in the popular Nga Roto Sub-division, various land sizes and homes can be customized to suit your budget. Other House & Land packages in other subdivisions are also available. Be quick to secure yours today.
*Listing subject to availability
See More ![Down arrow icon]()
Floor plan
0 / 1









