Amenities
- Property ID: LIS50F0
- Property Type: Affordable Housing, Investment, Terraced Housing
- Property Status: For Sale
- Price: $
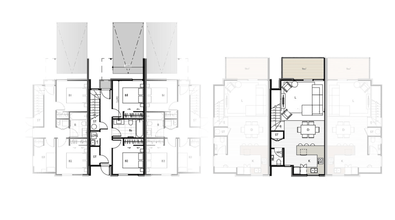
- Land Area: 91㎡
- Floor Area: 99㎡
- Living Areas: 1
- Bedrooms: 2
- Bathrooms: 1
- Garages: -
- Pool: No
- Solar Built In: No
- Year Built: -
Description
An affordable winning proposal for the first home buyer, downsizing or as a shrewd investment
Huapai Triangle - Positioned perfectly for easy walking to sought after preschools, primary school, access to village amenities and sports/recreation facilities. Consider on top of that natures wonderland a short drive away; with West Coast beaches, golfing, nature walks, Kaipara Harbour, 4WD trails and bike park…. All only 17mins from the Motorways.
Be wowed by what can be achieved in compact living when innovative design is incorporated. Set foot within this glorious duplex design and take in the concept of less is more! A clever, 2 bedroom home is envisaged amongst a wave of various architectural homes in the lovely Huapai Triangle, North West Auckland.
Get into this jewel of an area for under $900,000. We would love to guide you through this magnificent opportunity to create this wonderful home.
House and Land Package Features:
Easy care, level 91m2 site
99m2 duplex home
Multi level
Double bay frontage featuring balconys
Low maintenance, clean lined, mixed cladding
2 bedrooms with built in wardrobes
Designated laundry space conveniently positioned by bathroom
Stylish Tiled bathrooms
Fabulous Kitchen design incorporating casual dining experience
Decked alfresco dining/entertaining space
Off street parking













