Amenities
- Property ID: LIS4EB5
- Property Type: House & Land
- Property Status: For Sale
- Price: $1350000
- Land Area: 420㎡
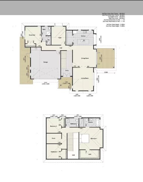
- Floor Area: 243㎡
- Living Areas: 2
- Bedrooms: 4
- Bathrooms: 3
- Garages: 2
- Pool: No
- Solar Built In: No
- Year Built: -
Features
- Office
- Double garage
- Ensuite
- Walk-in-wardrobe
- Alfresco
- Walk-in-Pantry
- Free standing bath
Description
Designed with the family in mind, you enter through the gorgeous double front doors where you are greeted with a beautiful staircase to the left and to your right the open plan dining / living area leading out onto an alfresco covered entertainment area. Also on this level is a room for your gym and guest bedroom with ensuite and separate toilet.
Head upstairs where you will find another two large bedrooms, separate bathroom, office/study along with the generous master bedroom, luxurious ensuite including a bath plus a huge walk in wardrobe.
Don’t miss out, talk to us today to make this your next dream home.
We provide a 10 year Master Build Guarantee, additionally all our work comes with a Summit Homes Guarantee and we stand by our work.
What can you expect from our team at Summit Homes
The Summit Homes team have extensive experience and we have an honest and open process, making sure the home building process is a great experience for you. We save you money because we do not have franchise fees and do not compromise on quality at any stage of the building process. It's our responsibility to turn your dream into reality.
*Listing subject to availability







