Amenities
- Property ID: LIS504D
- Property Type: House & Land
- Property Status: For Sale
- Price: $835000
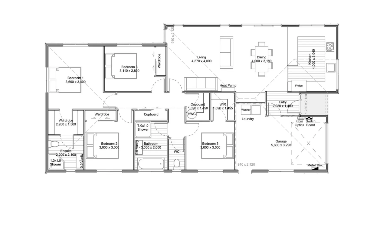
- Land Area: 369㎡
- Floor Area: 149㎡
- Living Areas: 1
- Bedrooms: 4
- Bathrooms: 2
- Garages: 1
- Pool: No
- Solar Built In: No
- Year Built: -
Features
- Double glazing
- Ensuite
- Heat pump
- Walk-in-wardrobe
- Fencing
- Landscaping
- Bosch appliances
- Free standing bath
Description
Lot 8 Kennedy’s Green, House & Land Package in Halswell – Titles Due November 2022 With 3 double bedrooms, open plan living and separate lounge, this home is perfectly appointed for growing families wanting the warmth and style of a new home.
*Listing subject to availability
See More ![Down arrow icon]()
Floor plan
0 / 1







