Amenities
- Property ID: LIS5022
- Property Type: House & Land
- Property Status: For Sale
- Price: $1057600
- Land Area: 558㎡
- Floor Area: 164㎡
- Living Areas: 1
- Bedrooms: 3
- Bathrooms: 2
- Garages: 2
- Pool: No
- Solar Built In: No
- Year Built: -
Features
- Fibre/VDSL
- Stone
- Double glazing
- Double garage
- Ensuite
- Heat pump
- Driveway included
- Lawn/grass seed
- Brick
- Weatherboard
- Metal tile roof
- Wall hung vanities
- Tiled showers
- Security alarm
- Recessed LED lighting
Description
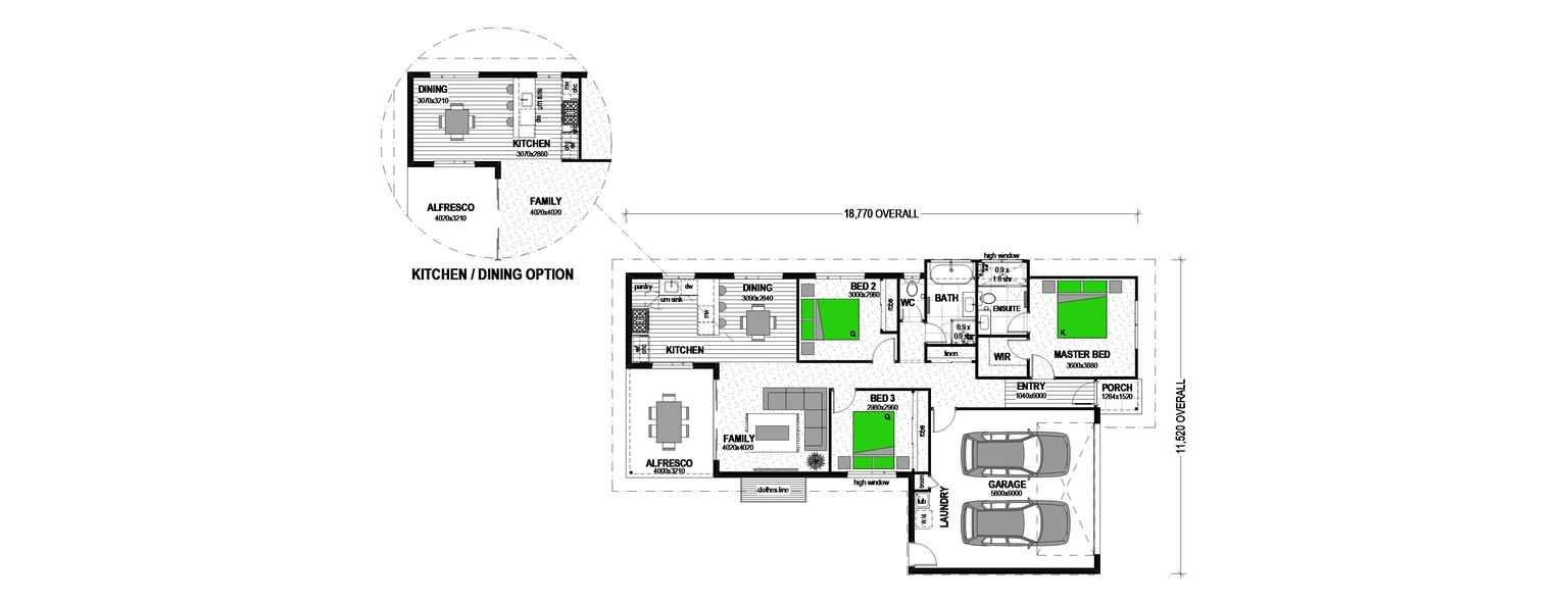
The Selwood 164, is a contemporary, well thought out, comfortable home, perfect for small sections!
Inside, the formal entrance and master bedroom, complete with ensuite and walk in robe, is located at the front of the home. The Selwood 164, contains two additional, amply proportioned bedrooms with built-in robes.
The design features a large open plan family room, opening seamlessly to the alfresco area. Adjacent to the family room is the kitchen and dining area, with views to the alfresco.
The kitchen features a design alternative confirming this home’s intelligent and flexible capacity to match your family’s needs.
See More ![Down arrow icon]()
Floor plan
0 / 1







