Amenities
- Property ID: LIS502C
- Property Type: Ready to Move in
- Property Status: For Sale
- Price: $899000
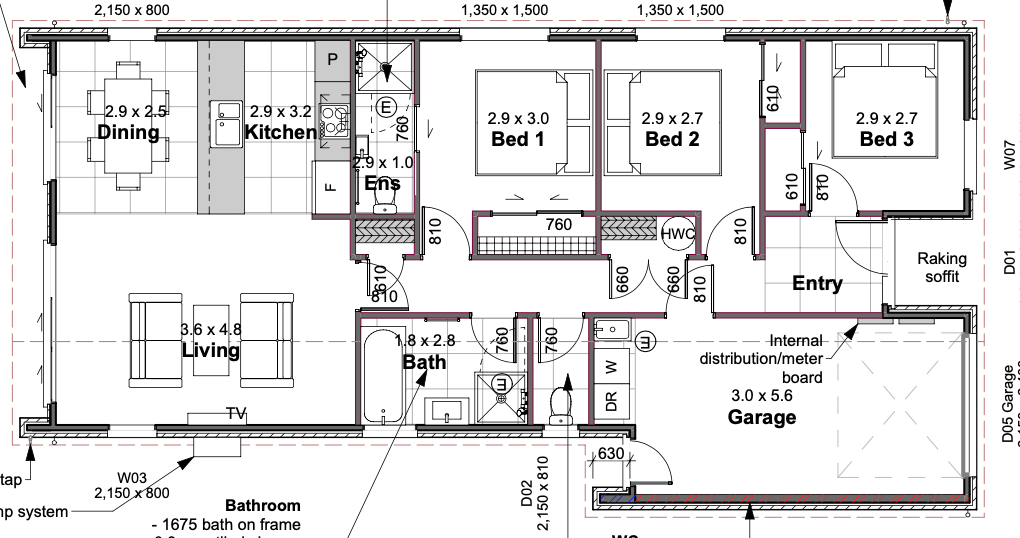
- Land Area: 268㎡
- Floor Area: 116.6㎡
- Living Areas: 1
- Bedrooms: 3
- Bathrooms: 2
- Garages: 1
- Pool: No
- Solar Built In: No
- Year Built: -
Features
- Double glazing
- Ensuite
- Heat pump
- Driveway included
- Fencing
- Landscaping
- Lawn/grass seed
- Wall hung vanities
- Tiled showers
- Fisher & Paykel appliances
- Security alarm
- Recessed LED lighting
Description
Looking for a convenient neighbourhood thats family friendly? This lovely home is everything you could ask for an it's ready to move in!
See More ![Down arrow icon]()
Floor plan
0 / 1







