Amenities
- Property ID: LIS4FB2
- Property Type: House & Land
- Property Status: For Sale
- Price: $879000
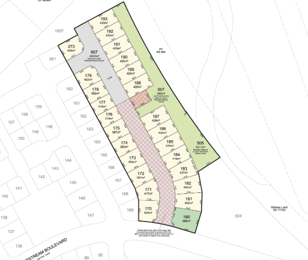
- Land Area: 442㎡
- Floor Area: 160㎡
- Living Areas: -
- Bedrooms: -
- Bathrooms: -
- Garages: -
- Pool: No
- Solar Built In: No
- Year Built: -
Description
Welcome to the popular Silverstream community, the perfect community for families and retirees alike.
Sections have become available within stage 9 of Silverstream. Titles are due April/May so there is no time to delay.
*Listing subject to availability
See More ![Down arrow icon]()
Floor plan
0 / 1







