Amenities
- Property ID: LIS4F33
- Property Type: House & Land
- Property Status: For Sale
- Price: $793000
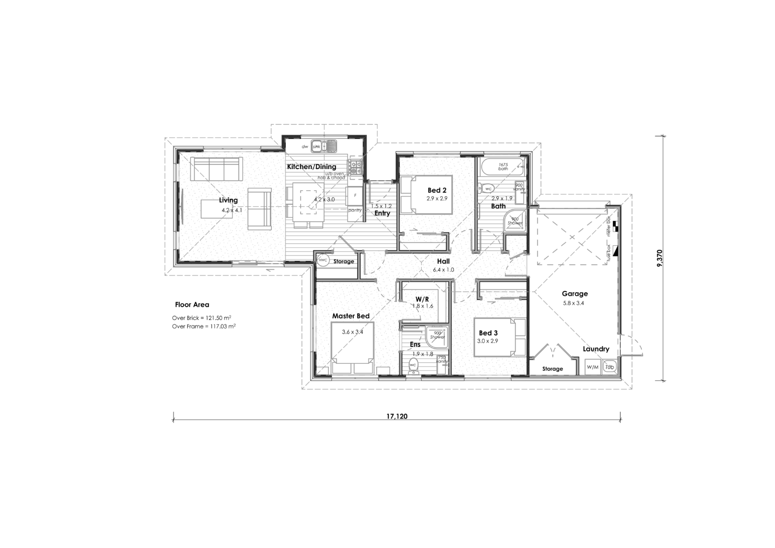
- Land Area: 259㎡
- Floor Area: 122㎡
- Living Areas: 1
- Bedrooms: 3
- Bathrooms: 1
- Garages: 1
- Pool: No
- Solar Built In: No
- Year Built: -
Features
- Ensuite
- Heat pump
- Walk-in-wardrobe
- Patio
- Driveway included
- Fencing
- Landscaping
- Bosch appliances
Description
Property Details
A new build: three bedroom, two bathroom home with open plan living, and single garage. This home is to be built during 2022 in Sanctuary Point, Poike, on a flat 259sqm site. The practical and sunny house design is 122m2 with living area flowing out to a patio and lawn open to the afternoon sun. An extra off-street carpark will provide additional space for a second vehicle. Private living and low maintenance, this package will offer first home buyers or downsizers a unique opportunity to have access to the sea through the reserve and so close to Tauranga City center for work and shopping.
Features
10 year master builder guarantee
Bosch appliances
Council permit fee
Floor coverings
Heat pump
Kitchen by Mastercraft
Master with ensuite and WIR
Open plan kitchen/dining/living
Single garage with internal access
Driveway and patio
Fencing and Landscaping package
*Listing subject to availability







