Amenities
- Property ID: LIS4FF2
- Property Type: House & Land
- Property Status: For Sale
- Price: $850000
- Land Area: 403㎡
- Floor Area: 150㎡
- Living Areas: 1
- Bedrooms: 3
- Bathrooms: 2
- Garages: 1
- Pool: No
- Solar Built In: No
- Year Built: -
Features
- Double glazing
- Ensuite
- Walk-in-wardrobe
- Alfresco
- Lawn/grass seed
- Separate laundry
- Recessed LED lighting
Description
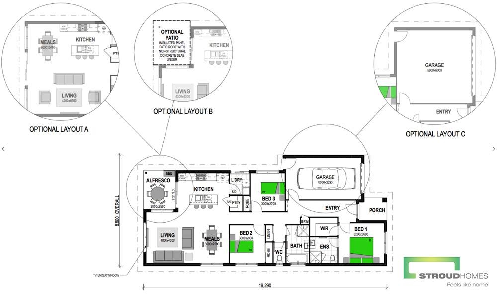
Conveniently located in Pukekohe's Regis Park, this compact three bedroom house plan designed for today’s living, packing so many features into well thought out spaces that work!
Built for family living, you will love the galley style kitchen with a breakfast bar, great for afternoon snacks.
The bright and breezy living area is amazing for entertaining with great sized sliding doors out onto the alfresco area.
There are plenty of optional upgrades available with this plan to suit your lifestyle needs. Need a larger living area or a double garage? Ask how we can tailor this plan.
Ideal for narrow sections, this design is great for young families, first home buyers and investors.
See More ![Down arrow icon]()
Floor plan
0 / 1








