Amenities
- Property ID: LIS50CB
- Property Type: House & Land
- Property Status: For Sale
- Price: $1050000
- Land Area: 616㎡
- Floor Area: 182㎡
- Living Areas: 1
- Bedrooms: 4
- Bathrooms: 3
- Garages: 2
- Pool: No
- Solar Built In: No
- Year Built: -
Features
- Double garage
- Ensuite
- Walk-in-wardrobe
- Double glazing
Description
Included features:
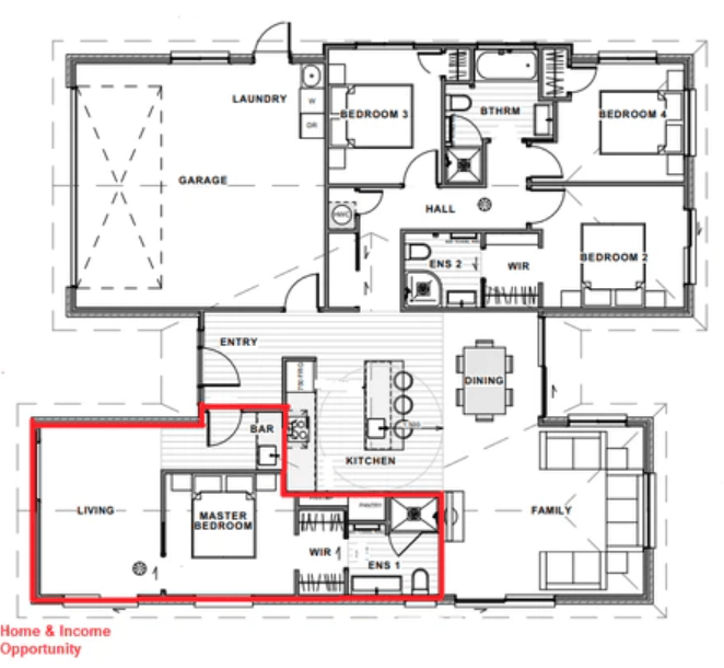
Contemporary, modern new 4 bdrm home with Home & Income potential
2 Master bedrooms with ensuites & WIR
Ability to close off area containing master, ensuite, living area & kitchenette
Open plan kitchen, living and dining spaces
Quality kitchen appliances
3 bathrooms including 2 en-suites
Double glazing throughout
A double garage combined with a laundry.
Professionally pre-selected interior and exterior colour schemes chosen by our interior designer (Or get in touch to make your own selection!)
A decent sized section designed to maximize all day sun
10 year Master Builder guarantee
What you will find in the area?
Walking distance to Tuakau Primary School & College
Tuakau town center 5 minute drive
Southern Motorway on ramp at Bombay a 10 minute drive
10 min drive to Pukekohe
Get in touch with us TODAY to find out more about this and our full range of home designs







