Amenities
- Property ID: LIS506B
- Property Type: House & Land
- Property Status: For Sale
- Price: $1214000
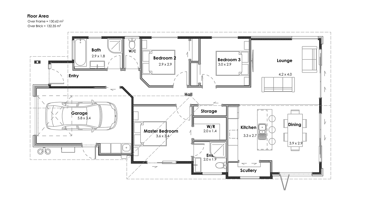
- Land Area: 523㎡
- Floor Area: 133㎡
- Living Areas: 1
- Bedrooms: 3
- Bathrooms: 2
- Garages: 1
- Pool: No
- Solar Built In: No
- Year Built: -
Features
- Double glazing
- Ensuite
- Heat pump
- Walk-in-wardrobe
- Walk-in-Pantry
- Fencing
- Landscaping
- Bosch appliances
- Free standing bath
Description
You will be making a good investment with this high specification and low maintenance new home to be built on Sanctuary Point waterfront
*Listing subject to availability
See More ![Down arrow icon]()
Floor plan
0 / 1







