Amenities
- Property ID: LIS4FEB
- Property Type: House & Land
- Property Status: For Sale
- Price: $2315000
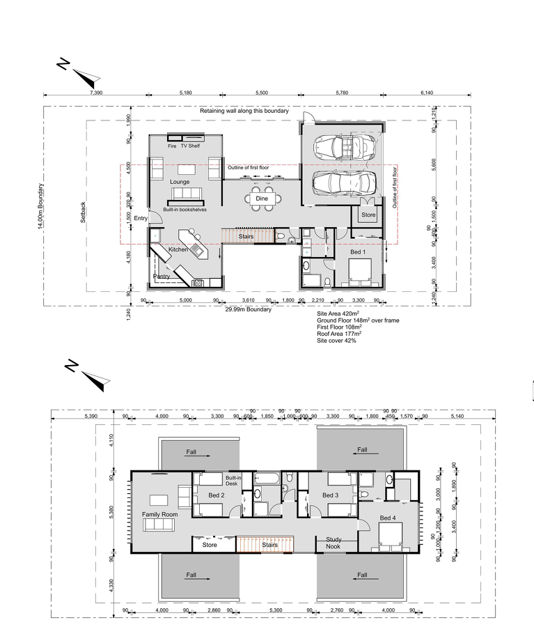
- Land Area: 420㎡
- Floor Area: 256㎡
- Living Areas: 2
- Bedrooms: 4
- Bathrooms: 3
- Garages: 2
- Pool: No
- Solar Built In: No
- Year Built: -
Features
- Double garage
- Ensuite
- Walk-in-wardrobe
- Walk-in-Pantry
- Separate laundry
- Free standing bath
Description
Park Green is a significant part of the Hingaia peninsula and provides for an upper harbour estuary setting with a significant coastal edge, freshwater streams, and large areas of greenways.
Park Green has been designed for its residents and as a destination for visitors to experience the greenways and waterfront together with local hospitality. It will cater for recreational interests including extensive cycleways and walkways, provide educational facilities, and a Neighbourhood Centre, for everyday needs, within a leafy precinct that will deliver a genuine village atmosphere.
A unique investment opportunity, this stunning modern design intended as a show home, will be a residence where everyone can claim their own private space and independence.
Architecturally designed to be filled with sunshine, the casual living areas on the ground level are open plan and have easy access to sheltered outdoor entertainment spaces, surrounded by low maintenance and beautiful easy care gardens.
The distinctive design is generous in size at 256sqm, offering living areas on both levels, with 4 bedrooms, 3 bathrooms and 2 separate toilets,.
Features include a gourmet Kitchen with 900mm oven and hob, Smart Light system, and built in study nooks and shelving appearing throughout.
*Listing subject to availability







