Amenities
- Property ID: LIS4FB3
- Property Type: House & Land
- Property Status: For Sale
- Price: $1182120
- Land Area: 593㎡
- Floor Area: 182㎡
- Living Areas: 1
- Bedrooms: 4
- Bathrooms: 2
- Garages: 2
- Pool: No
- Solar Built In: No
- Year Built: -
Features
- Gas
- Double garage
- Ensuite
- Heat pump
- Walk-in-wardrobe
- Alfresco
- Walk-in-Pantry
- Long run roof
- Wall hung vanities
- Tiled showers
- Bosch appliances
Description
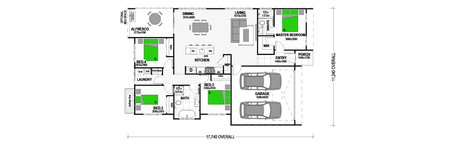
The Ellendale 182 is a compact house plan, yet full of features, making it the perfect home for families of all sizes.
The master bedroom is found at the front of the home, complete with an ensuite and walk-in robe. The three additional bedrooms are located at the rear left of the home.
The open plan kitchen, dining and living areas are central to the Ellendale, and open out to the alfresco. A double garage, walk-in pantry and built-in robes are some of the extra highlights of this home.
Reynolds Green is Pukekohe’s newest community. Located in the highly sort after ‘Valley,’ this development has been designed with residents front of mind.
Protected bush at the Northern end of the development provides a beautiful outlook for most homes. There will be a publicly vested and extensively planted stream flowing through the middle of the development that will truly give you the feeling of ‘Green.’
Features of this home include:
Designer kitchen with stone benchtops
Fully tiled showers
Full SMEG or Bosch appliance package
2 x Heat Pumps
Laminate and carpet flooring
Concrete driveway, path and patios
LED lighting
Quality tapware and fixtures
Wall hung vanities
10 year Master Build Guarantee
so much more!
Copy and paste this link to see all of our Fully Loaded Inclusions: https://www.stroudhomes.co.nz/new-home-inclusions/?region=pokeno-pukekohe
*Earthworks included level to 500mm fall
DISCLAIMER: *Images and photographs are example only *Subject to soil and topographical reports














